Carlift P2 4500kg - Hydraulisk 4-søyler Løftebukk / Parkeringsløfter

Nyhet!

Carlift P2 – Firesøylet løftebukk for service, EU‑kontroll og biloppbevaring / Parkeringsløfter

Carlift P2 er en solid og allsidig firesøylet hydraulisk løftebukk med god løftehøyde, utviklet for verksteder som krever maksimal stabilitet og fleksibilitet i hverdagen. Den stive konstruksjonen gjør at løftebukken kan brukes uten å boltes fast i gulvet, den leveres også med Hjulsett, noe som gir langt større frihet ved plassering og bruk – perfekt for både EU‑kontroll, service og lagring av kjøretøy.

Løftebukken leveres komplett med hjulsett for enkel forflytning samt dryppkar for å beskytte gulv og verkstedmiljø. Systemet har automatisk sikkerhetslås i hver søyle, som enkelt deaktiveres via manuell spak. I tillegg har hver søyle individuell høydejustering for både løfting og låsing, noe som gir full kontroll og presis nivellering.

For ekstra funksjonalitet er Carlift P2 utstyrt med innvendige skinner for traversjekk (manuell eller pneumatisk – selges separat).

Egenskaper og fordeler

  • Svært stiv og stabil firesøylekonstruksjon
  • Kan brukes uten gulvbolter – perfekt ved ommøblering av verksted
  • Automatisk sikkerhetslås i hver søyle
  • Motorsøylen kan monteres på begge sider, foran eller bak, etter behov.
  • Sklisikre diamantmønstrede plattformer og justerbare sikkerhetsstiger/låsestiger.
  • Manuell spak for enkel deaktivering av lås
  • Individuell høydejustering på alle plattformer
  • Leveres med hjulsett for mobil bruk
  • Leveres med dryppkar – ideelt for lagring og service
  • Skinner for traversjekk integrert (traversjekk kjøpes separat)
  • Fire mekaniske låsemekanismer, hver med både primær og sekundær sikkerhetslås.
  • Passer til EU‑kontroll, service og langtidslagring av bil
  • Driftssikker, kompakt og brukervennlig konstruksjon
  • CE‑merket og levert med norsk brukermanual

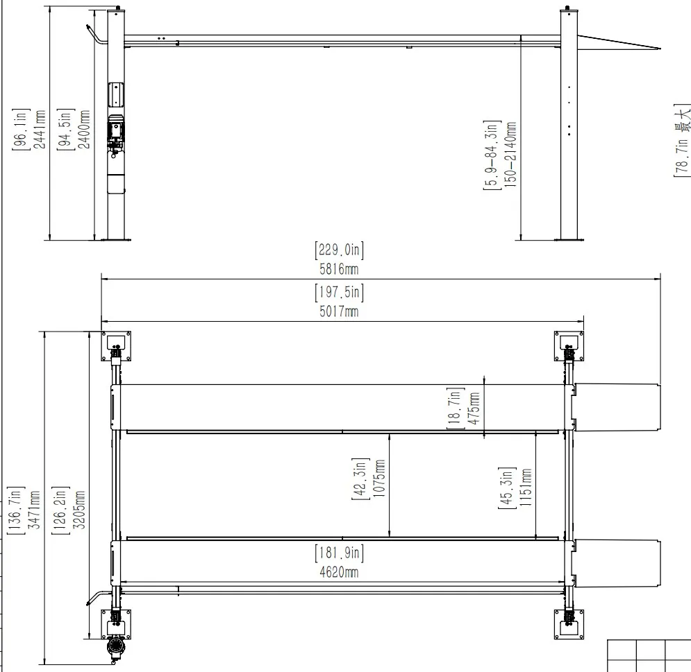
Tekniske spesifikasjoner – Carlift P2

  • Løftekapasitet: 4500 kg
  • Løftehøyde: 2140 mm
  • Frihøyde under plattformer: 2050 mm
  • Total lengde: 5816 mm (Inkludert Rampe)
  • Total lengde: 5017 mm (Søyle)
  • Total lengde Kjørebane: 4620 mm
  • Total bredde (Søyle): 3205 mm
  • Total bredde (ink. Motor): 3471 mm
  • Kjørebane Bredde: 475 mm
  • Høyde: 2441 mm
  • Vekt: 885 kg
  • Spenning: 230V / 50Hz 1‑fas (krever 16A treg sikring)
  • Sikkerhetslås: Automatisk, mekanisk
  • Individuell plattformjustering: Ja
  • CE‑merket
  • Norsk brukermanual inkludert

Inkludert i leveransen

  • ✔ Carlift P2 firesøyle løftebukk
  • ✔ Hjulsett for mobil bruk
  • ✔ Dryppkar
  • ✔ Komplett dokumentasjon / norsk manual 

    Kompatibelt tilleggsutstyr (selges separat)

    • Manuell traversjekk
    • Pneumatisk traversjekk

    Perfekt for

    • Verksteder
    • EU‑kontrollstasjoner
    • Bilhotell og lagringshaller
    • Garasjer som ønsker trygg langtidsparkering
    • Mekanisk arbeid og service
    • Lagermoduler 
    • Privat & Proff
kr 49 990,00
Pris inkl. MVA ekskl. MVA kr 39 992,00
På lager